ค้นหาทุกอย่างในเว็บครูบ้านนอก :
ชุมชนครู บุคลากรทางการศึกษา และนักเรียน แหล่งความรู้สำหรับครู นักเรียน ข่าวการศึกษา ห้องสมุดความรู้ทุกกลุ่มสาระการเรียนรู้ และความรู้ทั่วไป เผยแพร่ผลงานวิชาการ ที่นี่


Advertisement

ข่าวการศึกษา     ความรู้ทั่วไป     งานราชการ/รัฐวิสาหกิจ/บริการสังคมสำหรับคุณครู  ▶ ข่าว/บทความ ▶ หน้าแรก

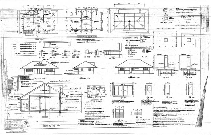
แบบก่อสร้างอาคารห้องสุมด ICT


สำหรับคุณครู 12 ต.ค. 2559 เวลา 06:35 น.

27,534

views
Advertisement

แบบก่อสร้างอาคารห้องสุมด ICT

แบบก่อสร้างอาคารห้องสุมด ICT

ดาวน์โหลดไฟล์แนบ

แบบก่อสร้าง  
รายการประกอบแบบก่อสร้าง 


ที่มา สำนักนโยบายและแผนการศึกษาขั้นพื้นฐาน 11 ตุลาคม 2559

 

ชุดไทยจิตรลดา โทนสีดำ ตัดเย็บจากผ้าไหมแพรทิพย์ งานละเอียดปราณีต แพทเทิร์นเข้ารูป สวยหรู ทันสมัย #ภาพถ่ายจากสินค้าจริง

฿1,790

https://s.shopee.co.th/8ANnSpUT4P?share_channel_code=6


แบบก่อสร้างอาคารห้องสุมด ICTแบบก่อสร้างอาคารห้องสุมดICT

Advertisement

≡ เรื่องอื่นๆ ที่น่าอ่าน ≡

การพิมพ์ TILDE ( ~ ) ใน Windows 7

การพิมพ์ TILDE ( ~ ) ใน Windows 7


เปิดอ่าน 17,034 ครั้ง

:: เรื่องปักหมุด ::

พระราชกฤษฎีกาจัดตั้งสำนักงานรับรองมาตรฐานและประเมินคุณภาพการศึกษา (องค์การมหาชน) (ฉบับที่ 3) พ.ศ. 2561

พระราชกฤษฎีกาจัดตั้งสำนักงานรับรองมาตรฐานและประเมินคุณภาพการศึกษา (องค์การมหาชน) (ฉบับที่ 3) พ.ศ. 2561

เปิดอ่าน 14,320 ☕ คลิกอ่านเลย

Advertisement

≡ เรื่องน่าสนใจในหมวดหมู่นี้ ≡
ขั้นตอนการขอต่อใบอายุใบอนุญาตประกอบวิชาชีพ
ขั้นตอนการขอต่อใบอายุใบอนุญาตประกอบวิชาชีพ
เปิดอ่าน 57,702 ☕ คลิกอ่านเลย

PowerPoint ชี้แจงหลักสูตรกลุ่มสาระการเรียนรู้วิทยาศาสตร์ภาคบังคับ ประถมศึกษาปีที่ 1 – มัธยมศึกษาที่ 3
PowerPoint ชี้แจงหลักสูตรกลุ่มสาระการเรียนรู้วิทยาศาสตร์ภาคบังคับ ประถมศึกษาปีที่ 1 – มัธยมศึกษาที่ 3
เปิดอ่าน 10,705 ☕ คลิกอ่านเลย

เกร็ดควรรู้สำหรับผู้ที่จะสมัครสอบบรรจุครูผู้ช่วย
เกร็ดควรรู้สำหรับผู้ที่จะสมัครสอบบรรจุครูผู้ช่วย
เปิดอ่าน 17,087 ☕ คลิกอ่านเลย

บัญชีเงินเดือนใหม่ 2 มกราคม 2552
บัญชีเงินเดือนใหม่ 2 มกราคม 2552
เปิดอ่าน 102,299 ☕ คลิกอ่านเลย

PowerPoint ชี้แจงหลักสูตรกลุ่มสาระการเรียนรู้วิทยาศาสตร์ สาระเทคโนโลยี
PowerPoint ชี้แจงหลักสูตรกลุ่มสาระการเรียนรู้วิทยาศาสตร์ สาระเทคโนโลยี
เปิดอ่าน 10,105 ☕ คลิกอ่านเลย

คู่มือ/แนวทางการดำเนินงานการประกันคุณภาพการศึกษาขั้นพื้นฐาน
คู่มือ/แนวทางการดำเนินงานการประกันคุณภาพการศึกษาขั้นพื้นฐาน
เปิดอ่าน 26,633 ☕ คลิกอ่านเลย

≡ เรื่องน่าอ่าน/สาระน่ารู้ ≡

เสียงประทัดส่งผลกระทบผู้ป่วย "โรคหัวใจ-ความดันโลหิต"
เสียงประทัดส่งผลกระทบผู้ป่วย "โรคหัวใจ-ความดันโลหิต"
เปิดอ่าน 16,729 ครั้ง

เปิดตัว "น้องกรณ์" หนูน้อย 1 ขวบ หัวใจใฝ่ธรรมะ ในคลิปดัง "ลูกศิษย์วัดตัวน้อยนั่งสัปหงก"
เปิดตัว "น้องกรณ์" หนูน้อย 1 ขวบ หัวใจใฝ่ธรรมะ ในคลิปดัง "ลูกศิษย์วัดตัวน้อยนั่งสัปหงก"
เปิดอ่าน 15,427 ครั้ง

เมื่อรู้สึกว่าอ้วนเกินไป ทำยังไงดี
เมื่อรู้สึกว่าอ้วนเกินไป ทำยังไงดี
เปิดอ่าน 16,592 ครั้ง

ปฏิรูปการศึกษา ปฏิรูปอะไร ? โดย ดร. วิชัย พยัคฆโส
ปฏิรูปการศึกษา ปฏิรูปอะไร ? โดย ดร. วิชัย พยัคฆโส
เปิดอ่าน 14,367 ครั้ง

นโยบายสำนักงานคณะกรรมการการศึกษาขั้นพื้นฐาน ปีงบประมาณ พ.ศ. 2564 - 2565
นโยบายสำนักงานคณะกรรมการการศึกษาขั้นพื้นฐาน ปีงบประมาณ พ.ศ. 2564 - 2565
เปิดอ่าน 21,617 ครั้ง

เกมส์ รวมเกมส์สนุกๆ มากมาย
สนามเด็กเล่น

แหล่งรวมเกมส์ เกมส์ให้เล่นมากมาย ศูนย์รวมเกมส์สนุกๆ เกมส์ความรู้ เกมส์ลับสมอง เกมส์ประลองยุทธ แหล่งรวบรวมข้อมูล เกมส์ เกมส์ออนไลน์ เกมส์มันๆ เกมส์ตัดผม ไว้มากมายที่นี่ ให้เด็กๆได้เลือกเล่นมากมาย คลิกเลย

 
หมวดหมู่เนื้อหา
เนื้อหา แยกตามหมวดหมู่ สามารถเลืออ่านได้ตามหมวดหมู่ที่นี่


· Technology
· บทความเทคโนโลยีการศึกษา
· e-Learning
· Graphics & Multimedia
· OpenSource & Freeware
· ซอฟต์แวร์แนะนำ
· การถ่ายภาพ
· Hot Issue
· Research Library
· Questions in ETC
· แวดวงนักเทคโนฯ

· ความรู้ทั่วไป
· คณิตศาสตร์
· วิทยาศาสตร์และเทคโนโลยี
· ภาษาต่างประเทศ
· ภาษาไทย
· สุขศึกษาและพลศึกษา
· สังคมศึกษา ศาสนาฯ
· ศิลปศึกษาและดนตรี
· การงานอาชีพ

· ข่าวการศึกษา
· ข่าวตามกระแสสังคม
· งาน/บริการสังคม
· คลิปวิดีโอยอดนิยม
· เกมส์
· เกมส์ฝึกสมอง

· ทฤษฎีทางการศึกษา
· บทความการศึกษา
· การวิจัยทางการศึกษา
· คุณครูควรรู้ไว้
· เตรียมประเมินวิทยฐานะ
· ผลงานวิชาการเล่มเต็ม
· เครื่องมือสำหรับครู

ครูบ้านนอกดอทคอม

เว็บไซต์เพื่อครู ข่าวการศึกษา ความรู้ การศึกษาไทย

      kroobannok.com

© 2000-2020 Kroobannok.com  
All rights reserved.


Design by : kroobannok.com


ครูบ้านนอกดอทคอม
การจัดอันดับของ Truehits Web Directory

วิธีนำแบนเนอร์ของครูบ้านนอก.คอมไปแปะในเว็บท่าน บันทึกภาพแบนเนอร์นี้และลิงค์มาที่เราครับ (มีแบนเนอร์ 2 แบบ)
 

ครูบ้านนอกดอทคอม เว็บไซต์ของครูตัวเล็กๆ คนหนึ่ง ที่หวังเพียง ใช้เป็นช่องทางในการสื่อสาร แลกเปลี่ยน เพิ่มพูนความรู้ และให้ข่าวสาร ที่ทันสมัยต่อเหตุการณ์แก่คุณครู ผู้ปฏิบัติงานในทุกพื้นที่ของประเทศไทย เพื่อความเจริญงอกงามในปัญญา และเจริญก้าวหน้าในวิชาชีพ

เว็บนี้ถือกำเนิดเมื่อ 5 มกราคม 2548

Email : kornkham@hotmail.com
Tel : 096-7158383

สนใจสนับสนุนเรา โดยลงโฆษณา
คลิกดูรายละเอียดที่นี่ครับ